Home

HVE Brasil é formada por profissionais altamente especializados, com ampla experiência na transferência de tecnologia, gestão de plantas, planejamento estratégico.

Atuamos no Brasil e nos países vizinhos, oferecendo soluções inovadoras personalizadas.

HVE - Waste Management

Waste to Energy

HVE Brasil aliou-se à Oschatz, empresa alemã com mais de 160 anos de experiência, com 1.200 funcionários, seis filiais, bem como escritórios de representação em todo o mundo, Oschatz é líder de mercado nas áreas de produtos de siderurgia, metalurgia de metais não ferrosos, tecnologias ambiental e química.

www.oschatz.com

Transferência de tecnologia

Introdução de soluções ambientais inovadoras no Brasil, tecnologias alemãs comprovadas na Europa.

No processo de transferência de tecnologia as vezes ocorre a necessidade de treinar a equipe que irá operar a nova planta ou o novo processo. A HVE tem vasta experiência em coordenar o treinamento destas equipes, inclusive no exterior.

Especializados na transferência da tecnologia Waste to Energy, processo de geração de energia elétrica, proveniente da incineração de resíduos urbanos.

A crescente demanda da legislação e o aumento da complexidade das soluções técnicas tem caracterizado a tecnologia Waste to Energy. A HVE-Oschatz planeja, desenvolve e constrói plantas e sistemas ambientalmente amigáveis, orientados para a recuperação de energia a partir de resíduos sólidos urbanos, biomassa, resíduos enriquecidos (CDR), sempre utilizando as mais modernas tecnologias.

Para a exploração térmica de resíduos sólidos e de biomassa oferecemos tanto soluções completas como os componentes individualizados.

A fabricação de sistemas e componentes ocorre em uma das modernas instalações de Essen na Alemanha, de Istambul na Turquia e Nanjing na China - claro que levando em conta todos os padrões de qualidade internacionais, tais como ISO 9001, ASME, Normas EU.

Todos os produtos Oschatz são caracterizados por alta rentabilidade, facilidade de manutenção e disponibilidade dos componentes individuais.

Saiba mais em:

Consultoria ambiental

Consultoria e suporte nas questões de licenciamento, processos de incineração de resíduos sólidos, recuperação energética e passivos ambientais.

HVE - Consulting

HVE Brasil aliou-se à Oschatz, empresa alemã com mais de 160 anos de experiência, com 1.200 funcionários, seis filiais, bem como escritórios de representação em todo o mundo, Oschatz é líder de mercado nas áreas de produtos de siderurgia, metalurgia de metais não ferrosos, tecnologias ambiental e química.

www.oschatz.com

Otimização empresarial

Organização de negócios e ganho de mercado

  • Organização de informações
  • Planejamento
  • Diagnóstico interno
  • Análise da situação atual
  • Análise de clientes e de canais

Temos vasta experiência na indústria química e suas afins, tanto nos processos de produção, quanto na gestão do negócio.

Fatores de Sucesso X Diferenciais da HVE-Oschatz

HVE

Tecnologia limpa e rentável

A crescente demanda da legislação e o aumento da complexidade das soluções técnicas tem caracterizado a tecnologia Waste to Energy. A HVE-Oschatz planeja, desenvolve e constrói plantas e sistemas ambientalmente amigáveis, orientados para a recuperação de energia a partir de resíduos sólidos urbanos, biomassa, resíduos enriquecidos (CDR), sempre utilizando as mais modernas tecnologias.

Para a exploração térmica de resíduos sólidos e de biomassa oferecemos tanto soluções completas como os componentes individualizados.

A fabricação de sistemas e componentes ocorre em uma das modernas instalações de Essen na Alemanha, de Istambul na Turquia e Nanjing na China - claro que levando em conta todos os padrões de qualidade internacionais, tais como ISO 9001, ASME, Normas EU.

Todos os produtos Oschatz são caracterizados por alta rentabilidade, facilidade de manutenção e disponibilidade dos componentes individuais.

Recuperação energética

Características da tecnologia:

  • O calor gerado na grelha é usado na caldeira;
  • A caldeira é composta de evaporador, super-aquecedor e “economizer”;
  • Processo de limpeza dos efluentes gasosos.

Principais fatores de sucesso do processo Oschatz:

  • Boa distribuição do meio de combustão (ar) e do combustível (lixo);
  • Eficiência na transferência de calor na caldeira;
  • Material de construção – resistência ao calor, anti-corrosão etc.

Recuperação energética

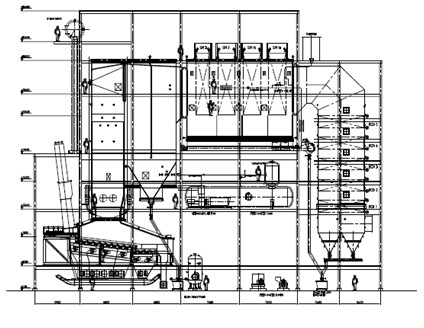
Para o processamento térmico de resíduos sólidos a HVE-Oschatz oferece soluções completas e componentes, tudo baseado na mais avançada tecnologia.

O sistema de queima através de grelha é comprovadamente o sistema mais adequado para o tratamento de resíduos sólidos uma vez que estes tem uma composição química variável e uma estrutura muito heterogênea.

A partir da queima destes resíduos sobre a grelha, obtém-se o vapor na caldeira, que por sua vez aciona uma turbina que converte essa combustão em energia elétrica.

Dependendo das necessidades, as caldeiras podem ser desenvolvidas na posição horizontal ou vertical. Tanto o projeto da caldeira quanto o sistema de limpeza de superfície aquecidas foram desenvolvidos para longos tempos de operação e alta disponibilidade.

Através da combinação de componentes tecnicamente comprovados para a limpeza dos gases de combustão a Oschatz criado tendo em conta as condições específicas do local no conceito de fábrica ambientalmente amigável. Os especialistas da Oschatz dão apoio aos clientes desde a escolha do modelo mais adequado até a entrega da usina.

A tecnologia

Para o processamento térmico de resíduos sólidos a HVE-Oschatz oferece soluções completas e componentes, tudo baseado na mais avançada tecnologia.

O sistema de queima através de grelha é comprovadamente o sistema mais adequado para o tratamento de resíduos sólidos uma vez que estes tem uma composição química variável e uma estrutura muito heterogênea.

A partir da queima destes resíduos sobre a grelha, obtém-se o vapor na caldeira, que por sua vez aciona uma turbina que converte essa combustão em energia elétrica.

Dependendo das necessidades, as caldeiras podem ser desenvolvidas na posição horizontal ou vertical. Tanto o projeto da caldeira quanto o sistema de limpeza de superfície aquecidas foram desenvolvidos para longos tempos de operação e alta disponibilidade.

Através da combinação de componentes tecnicamente comprovados para a limpeza dos gases de combustão a Oschatz criado tendo em conta as condições específicas do local no conceito de fábrica ambientalmente amigável. Os especialistas da Oschatz dão apoio aos clientes desde a escolha do modelo mais adequado até a entrega da usina.

Principais características da tecnologia:

  • O calor gerado na grelha é usado na caldeira;
  • A caldeira é composta de evaporador, super-aquecedor e “economizer”;
  • Processo de limpeza dos efluentes gasosos.

Principais fatores de sucesso do processo Oschatz:

  • Boa distribuição do meio de combustão (ar) e do combustível (lixo);
  • Eficiência na transferência de calor na caldeira;
  • Material de construção – resistência ao calor, anti-corrosão etc.

Esquema da tecnologia

HVE

Algumas plantas construídas com a nossa tecnologia

HVE

CHEMTEX Italy 44 MW

HVE

Chemical Company in Germany 2X 160 MW

HVE

MKV – Mecklenburger Hagenow 30 MW

HVE

Weig GmbH & Co. KG, Mayen 15 MW

HVE

IHKW – Andernach Rasselstein Weissblech, Andernach 54 MW

HVE

Zweckverband Abfallwirtschaft Saale-Orla Rudolstadt in Thüringen 29,5 MW

HVE

Marsberger Kraftwerk GmbH Giershagen 24 MW

HVE

Wilmersdorf 29,5 MW

Estudos de viabilidade econômica

Desenvolvimento de estudos de viabilidade econômica. Minimização de riscos e maximização de oportunidades.

  • Cálculos de retorno de investimentos
  • Simulações e comparações de custos
  • Desenvolvimento de business cases

Potencial de mercado

Estudos de potencial de mercado

  • Desenvolvimento de mercado
  • Volume de mercado
  • Estrutura do mercado
  • Estrutura competitiva

Avaliação do cenário competitivo

  • Demandas do mercado
  • Imagem das marcas
  • Pontos fortes e pontos fracos
  • Oportunidades e ameaças

Planejamento estratégico

Desenvolvimento de planos estratégicos para o ajuste do foco competitivo de empresas, entidades e corporações:

  • Base de informações
  • Planos de ações
  • Classificação das ações
  • Estrutura e gerenciamento
  • Controle e follow-up

Orientação Competitiva

  • Mercados alvo
  • Cenários e oportunidades
  • Classificação e performance
  • Estratégia básica

Quem somos

HVE

William Horstmann

Engenheiro, com MBA e especialização em marketing no Brasil e Alemanha, atuou como executivo em multinacional. Tem 28 anos de experiência no setor corporativo unindo informações do mercado com a consultoria de negócios, o planejamento estratégico com a organização corporativa.

HVE

José de Santa Rita Vaz

Químico, com especialização em marketing e finanças no Brasil e Alemanha atuou por 30 anos como executivo em multinacional do ramo químico em projetos, transferência de tecnologia, marketing, planejamento estratégico bem como em aquisições e Joint Ventures. Foi Vice-Presidente do SIRESP.

HVE

Odilon Ern

Engenheiro químico, com especialização em produção e gestão de plantas químicas. Atuou como executivo em multinacional, desenvolvendo projetos com transferência de tecnologias. Com mais de 30 anos de experiência foi responsável por Manutenção Engenharia, Energias, Segurança, Meio Ambiente e Gestão Integrada de Sites na América do Sul.

Nosso contato

HVE HVE

Cel. William Horstmann: 55 13 99118 9701

Cel. José Vaz : 55 11 98389 6313

Cel. Odilon Ern: 55 12 98158 4670

www.oschatz.com